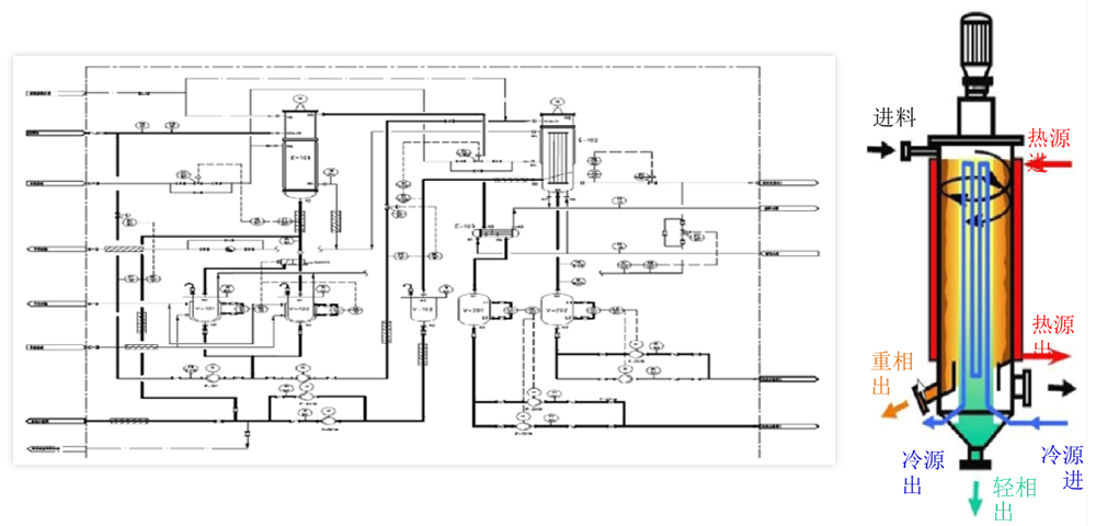
The short-range evaporator is an agitated thin-film evaporator with a condenser built in the evaporation chamber. The light component steam condenses on the condenser built in the short-range evaporator. The path between evaporation surface and condensation surface is very short, so the gas phase pressure drop is very low.
The design of short-range evaporator is based on the principle of molecular distillation, which is suitable for purification of high heat sensitivity, high boiling point and oxidizing substances. It can be combined with film evaporation to form a multi-stage evaporation system to separate more than two substances, and can effectively achieve the following purposes, etc
-Improve yield - get high purity product - change color - change taste
